French River Cabin

CREDIT

ARCHITECTURE

BUILDING

COMPLETED

TYPE

Place Architecture:Design

Restoule J.C.A.R.L Construction

2018

Single-Family Residence

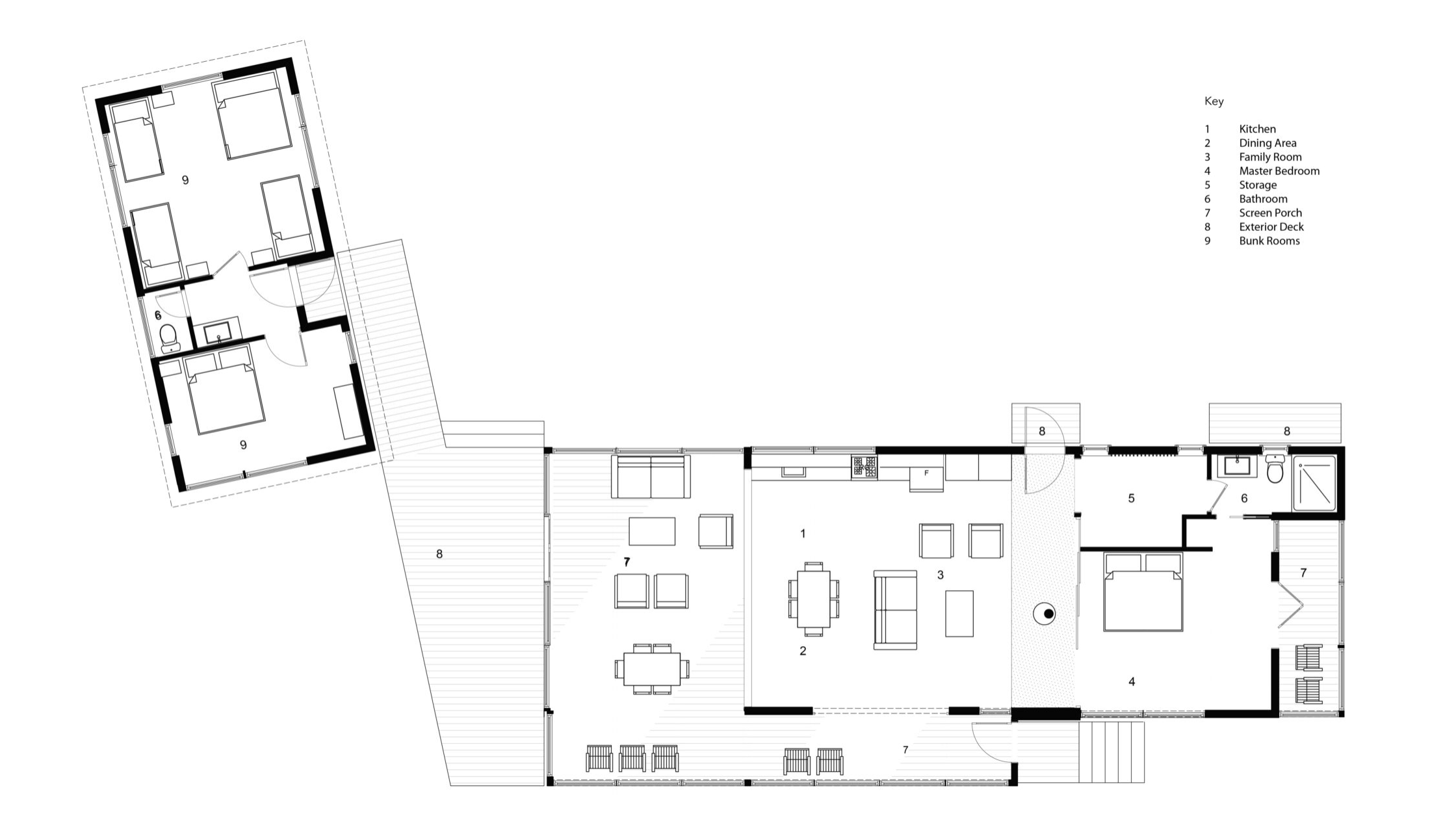
This family retreat, on the French River in Ontario, Canada, sits on a plateau in a quiet wilderness setting. Since no electricity is accessible in the region, the 900 sq. ft. vacation cabin relies entirely on passive strategies for comfort, including natural daylighting, cross-ventilation, and carefully oriented openings that respond to seasonal sun paths and prevailing winds. Locally sourced materials and a compact footprint minimize environmental impact while reinforcing a strong connection to the surrounding landscape.

The distinctive organic-shaped roof was designed to mimic the site’s topography; its diagonal ridge adds to the character of this hideaway while efficiently shedding snow during the winter months. Deep overhangs provide shade in the summer and protection from the elements year-round, while the building’s elevated position preserves the natural terrain and offers expansive views of the river below. Together, these elements create a resilient, low-impact retreat that blends seamlessly into its remote setting while offering a warm and functional refuge for family life.