Heber House

ARCHITECTURE

CREDIT

COMPLETED

TYPE

Place Architecture:Design

2020

Single-Family Residence

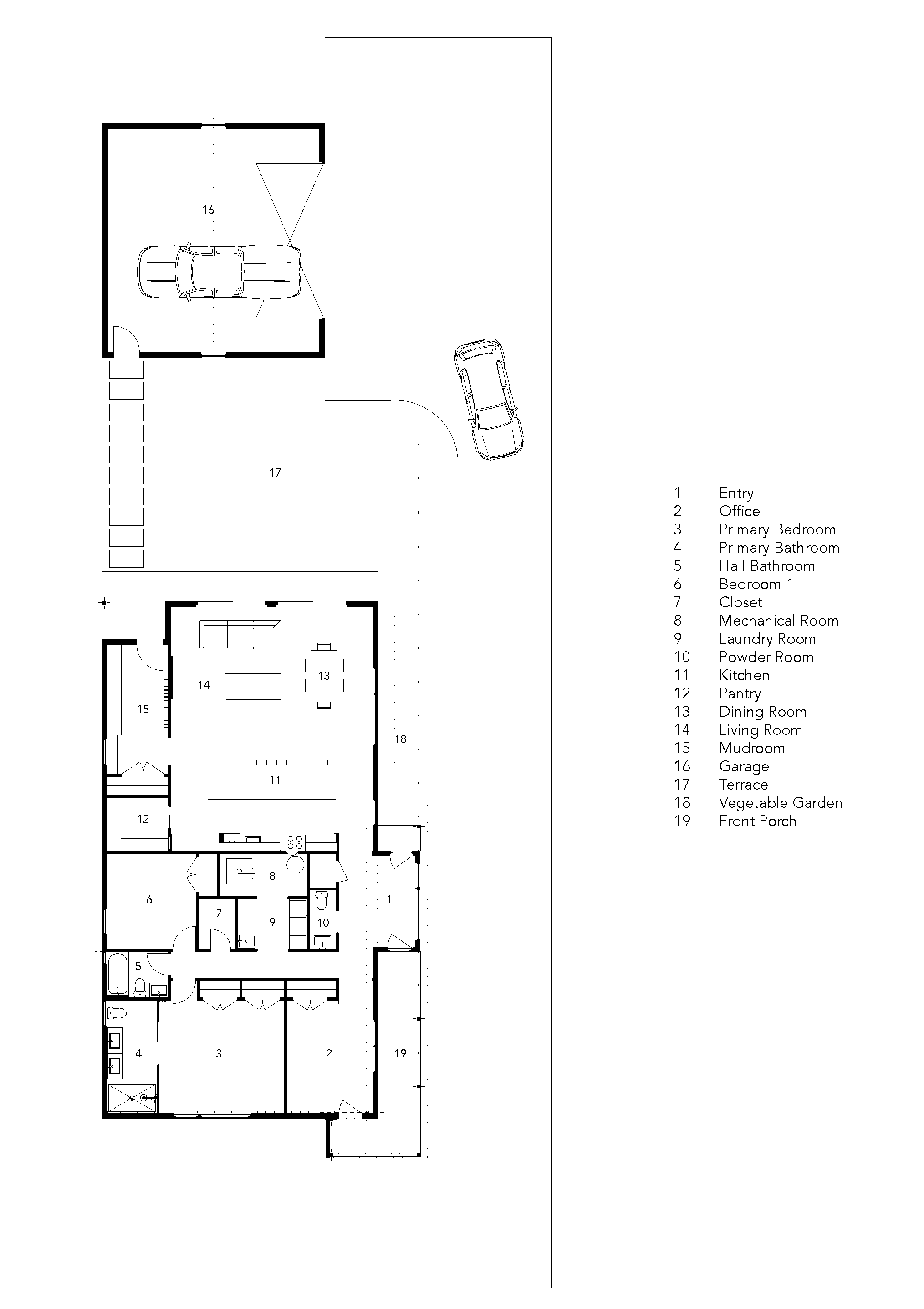
Set against the mountains of Utah, this project reimagines a once-utilitarian garage, formerly home to vehicles, skis, and bikes, into a fully functional residence. Working within the existing footprint, the expansive open plan allowed us to rethink how the client lives day to day, creating a more flexible and contemporary way of inhabiting the space.

The subdivision of the lot played a key role in shaping the design strategy. To maximize privacy from the neighboring property, we organized the primary living spaces toward the rear of the site. A wood screen acts as a subtle visual buffer between properties, defining an intimate garden area directly off the kitchen.

Throughout the project, windows were carefully positioned to promote natural ventilation, while reclaimed wood was incorporated to add warmth and character. With an emphasis on sustainability and longevity, we selected energy-efficient insulation and environmentally conscious materials. Transitioning from a traditional 1940s home, the result is a modern, adaptable space designed to support the needs of contemporary living.