Tidewater

ARCHITECTURE

BUILDING

MILLWORK

CREDIT

PHOTOGRAPHY

COMPLETED

TYPE

Place Architecture:Design

2021

Single-Family Residence

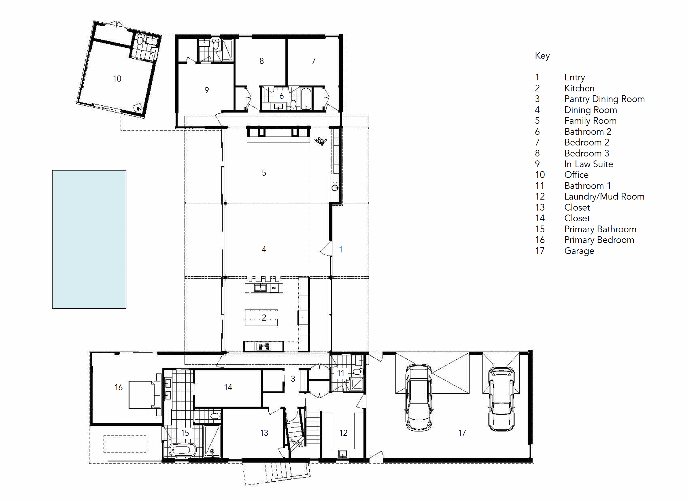
This new residence is nestled into a wooded, western sloping site, that faces a tributary off the Chesapeake Bay.  Our design positions the main living space at the center of the site, with two flanking wings for bedrooms and support spaces.

This configuration frames the water-views seen from the adjacent rooms. The central area boasts a 14 foot sloping ceiling, floor-to-ceiling glass, and a 32 foot wide bi-parting door, to provide a 16 foot clear opening; creating a seamless transition to the outdoors. All elements work together to fully maximize the owners’ experience.